• Work
    • ALL WORK
    • Urbanism
    • Cultural
    • Art
    • Residential
  • News
  • about
    • Profile
    • Theodore Hoerr
    • Press
  • Contact
Terrain Work
  • Work
    • ALL WORK
    • Urbanism
    • Cultural
    • Art
    • Residential
  • News
  • about
    • Profile
    • Theodore Hoerr
    • Press
  • Contact

Hudson Commons

NEW YORK, NEW YORK

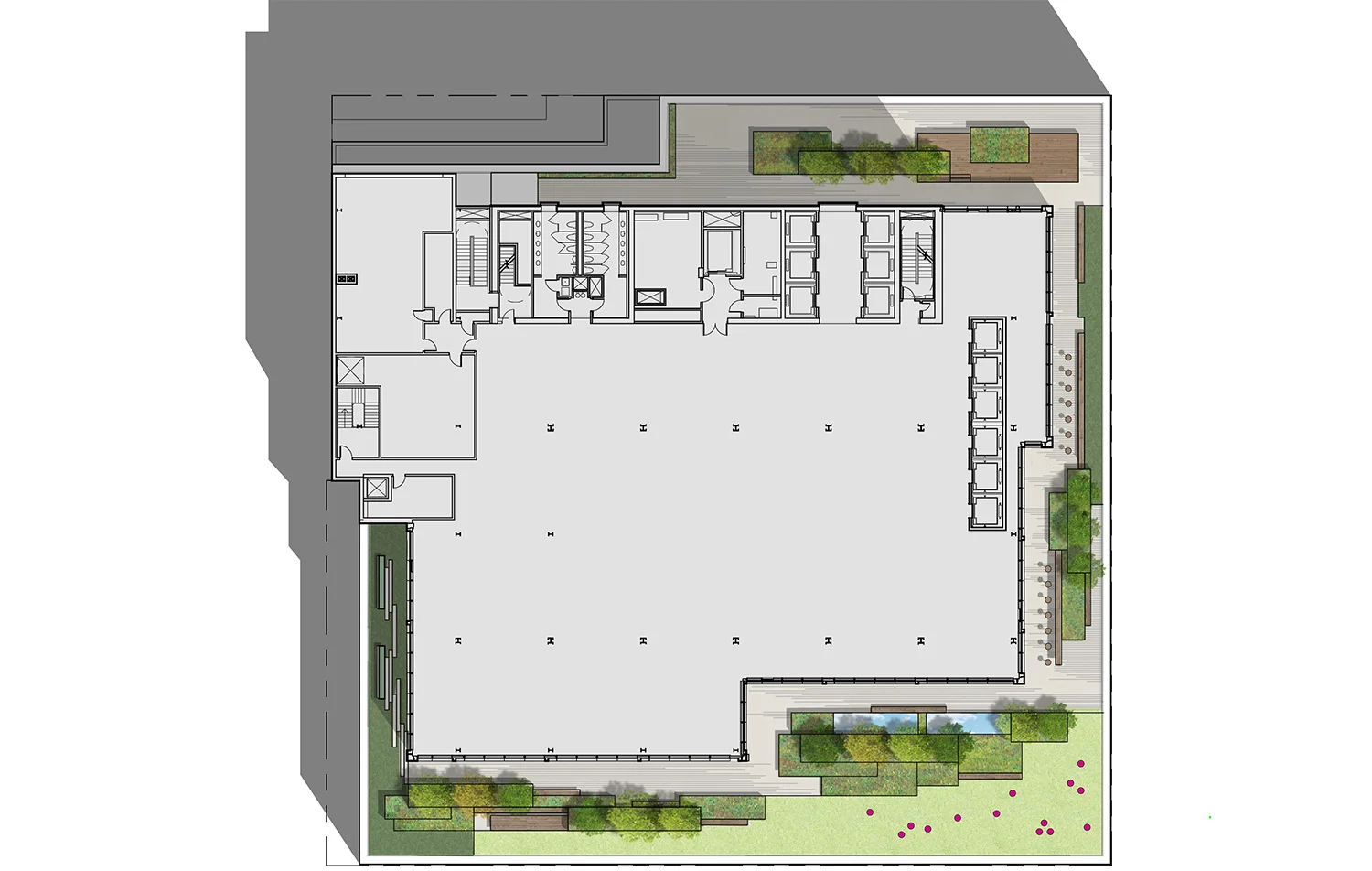
Manhattan can be viewed as an agglomeration of objects resting on terra firma or as an integrated topography full of peaks and valleys with a close association to its underlying geology.  Terrain Work’s landscape for Hudson Commons, a new commercial office space by Cove Property Group and KPF Architects at 441 Ninth Avenue in Manhattan, creates an Urban Mountain where the landscape changes in composition and experience as it climbs up from the ground to the peak of the structure.   Plant communities, strata, and programs are all linked to their corresponding elevation within the Hudson Commons giving shape to three distinctly different set of experiences -  The Grove, The Glades, and The Apex.  

The Grove is located on the 9th floor at the base of the tower and is characterized by a dense canopy of native Grey Birch (Betula populifolia) trees creating shady spots for individual outdoor work areas, meetings spaces, and large gathering spaces.  The Glades are a series of terraces that climb up the mid-level of the structure with native Pitch Pines (Pinus rigida) that lend a windswept sculptural appearance.  The Apex is at the peak of the structure with panoramic views of the Hudson river Palisades to the west and views of the historic Empire State Building and New Yorker Hotel to the east.  The landscape is comprised of alpine plants and low sedums along with a large granite boulder that acts as a counterpoint to the iconic New York City skyline. Photo Credit: BTH

TERRAIN_WORK_HUDSON-COMMONS.jpg
TERRAIN WORK LANDSCAPE MASTER PLANNING
CONCEPT-ATTEMPT-2-SM.jpg
TERRAIN WORK LANDSCAPE ARCHITECTURE NEW YORK
TERRAIN WORK LANDSCAPE ARCHITECTURE NEW YORK
TERRAIN WORK LANDSCAPE ARCHITECTURE NEW YORK
TERRAIN WORK LANDSCAPE NEW YORK
TERRAIN WORK HUDSON COMMONS LANDSCAPE NEW YORK
TERRAIN WORK HUDSON COMMONS LANDSCAPE NEW YORK
Hudson_Commons_PAVING-UNITS_lres.jpg
TERRAIN_WORK_HUDSON_COMMONS_9thflr.jpg
Hudson_Commons_PAVING-UNITS2_lres.jpg
TERRAIN WORK MASTER PLAN NEW YORK
TERRAIN WORK LANDSCAPE ARCHITECTURE NEW YORK
TERRAIN WORK LANDSCAPE ARCHITECTURE NEW YORK
TERRAIN_WORK_HUDSON-COMMONS_x11.jpg
bouldergifnologo.gif
TERRAIN WORK LANDSCAPE ARCHITECTURE NEW YORK
hudson-commons_boulder_lres.jpg
TERRAIN_WORK_HUDSON-COMMONS_x2.jpg
TERRAIN_WORK_HUDSON-COMMONS_x8.jpg
TERRAIN_WORK_HUDSON-COMMONS_x7.jpg
TERRAIN_WORK_HUDSON-COMMONS_x3.jpg
TERRAIN_WORK_HUDSON-COMMONS_x6.jpg
TERRAIN_WORK_HUDSON-COMMONS_x1.jpg
TERRAIN_WORK_HUDSON-COMMONS_x5.jpg
hudson commons_night.jpg

TERRAIN WORK LANDSCAPE ARCHITECTURE URBAN DESIGN PLLC